noticias

Ayto. de Meco

08 Nov 2022
Naturaleza
Árboles para recordar y educar en lo medioambiental

Árboles para recordar y educar en lo medioambiental

Arboles para recordar y cuidar el planetaEl ayuntamiento y el colegio San Sebastián de Meco aúnan esfuerzos e...

31 Oct 2022
Cultura
Halloween en Meco

Halloween en Meco

15 Sep 2022
Deportes
El polideportivo se transforma en un lugar mucho más atractivo

El polideportivo se transforma en un lugar mucho más atractivo

La imagen del polideportivo al aire libre de Meco será -en breve- ostensiblemente distinta y mejor. El equipo de...

15 Sep 2022
Deportes
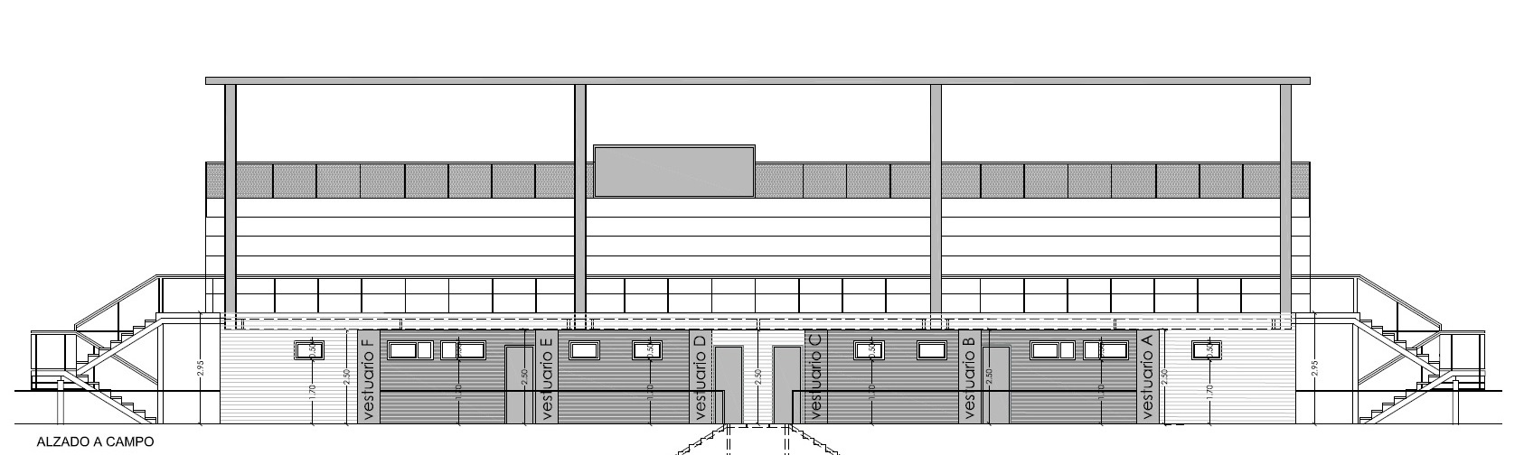
El campo de fútbol tendrá vestuarios nuevos

El campo de fútbol tendrá vestuarios nuevos

El proyecto para construir unos vestuarios bajo las nuevas y modernas gradas del campo de fútbol ya está aprobado....

21 Mar 2022
El nuevo aparcamiento de Ciudad de la Luz ya presta servicio

El nuevo aparcamiento de Ciudad de la Luz ya presta servicio

Ciento veinticinco plazas gratuitas para descongestionar el barrio de Ciudad de la Luz, para satisfacer una...

21 Mar 2022
El abono de transporte se reduce en Meco en 7,50 euros

El abono de transporte se reduce en Meco en 7,50 euros

Desde el 1 de enero de 2022, el abono mensual de transporte cuesta 7,50 euros menos. La integración de la zona...

21 Mar 2022
Educación Vial y Medioambiental de la mano de la Policía Local

Educación Vial y Medioambiental de la mano de la Policía Local

1.700 escolares de Meco interiorizan valores relacionados con la circulación y el medio ambiente en el Aula Abierta...

21 Mar 2022
Atención al vecino
Cuesta no emocionarse cuando escuchas a los vecinos hablar con orgullo de Meco

Cuesta no emocionarse cuando escuchas a los vecinos hablar con orgullo de Meco

Pedro Luis Sanz Carlavilla reconoce liderar un gobierno donde todos y cada uno de los concejales que lo forman se...

A un click

Lo más visitado en Meco

Directorio Municipal

arrow

Sede Electrónica

arrow

Portal Transparencia

arrow

Carpeta Tributaria

arrow

Perfil Contratante

arrow

Áreas Municipales

arrow